Immobilier Biarritz - Agence Immobilière Côte d'Argent Immobilier

Location appartement T3 à BORDEAUX | 54 m2 - 818 C.C. € / mois

DESCRIPTIF DU BIEN

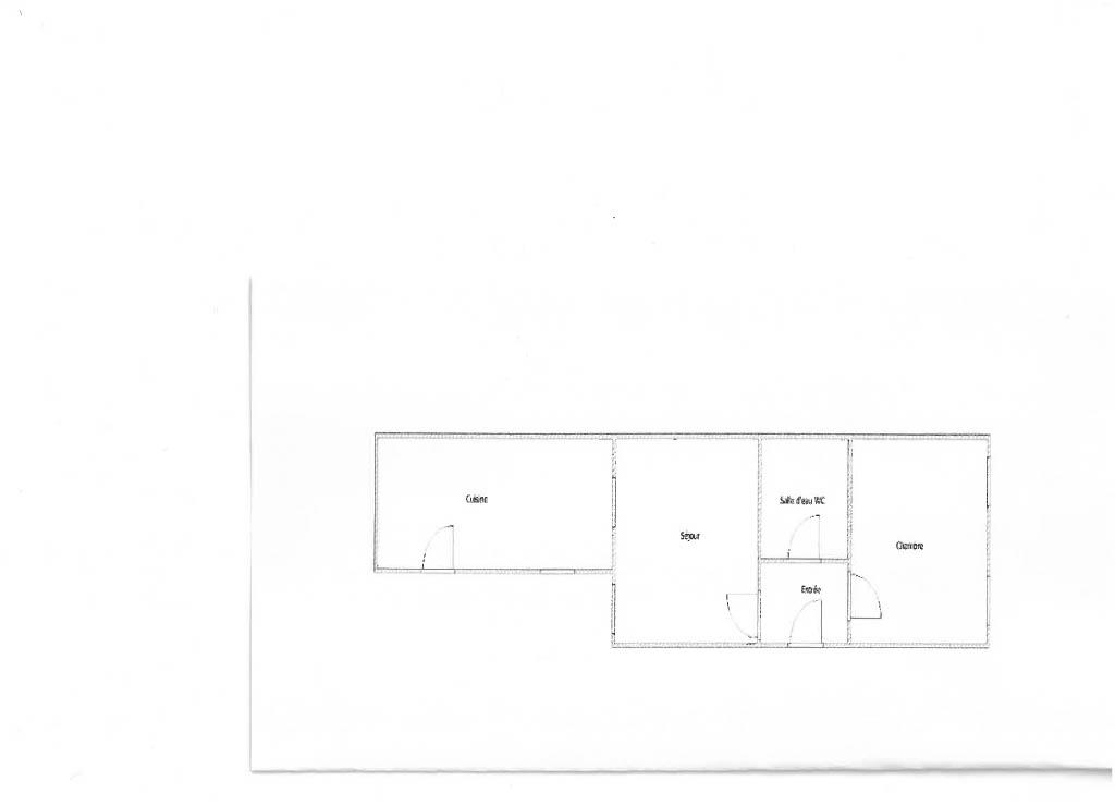
Centre ville - 39 rue St Fort à Bordeaux - Centre ville, a proximité de tous commerces, venez découvrir cet appartement de type 3. Il est composé d'une entrée, une cuisine séparée/salle à manger, un salon, une chambre et d'une salle d'eau/wc. Loyer de 818,13 euros par mois charges comprises dont 15,00 euros par mois de provision pour charges (soumis à la régularisation annuelle). Les honoraires charge locataire sont de 685,37 euros ( soit 12,64 euros/m² ) dont 159,00 euros pour état des lieux ( soit 2,93 euros/m² ).

  • Location appartement T3  à BORDEAUX - 1
  • Location appartement T3  à BORDEAUX - 2
  • Location appartement T3  à BORDEAUX - 3
  • Location appartement T3  à BORDEAUX - 4
  • Location appartement T3  à BORDEAUX - 5
  • Location appartement T3  à BORDEAUX - 6
  • Location appartement T3  à BORDEAUX - 7
  • Location appartement T3  à BORDEAUX - 8
  • Location appartement T3  à BORDEAUX - 9
CONTACTEZ-NOUS
3 rue du Helder, 64200 Biarritz
Tél : 05 59 24 11 48
Email : agence@immobilier-cotedargent.com

Référence du bien : ges11870001-651

INFORMATIONS DÉTAILLÉES
Type : AppartementMandat : exclusifÉtat général : HabitableLocalisation : Centre villeCuisine : SimpleNbre pièces : 3Nbre de salles d'eau : 1Surface habitable : 54 m2Eau chaude : Ballon électriqueChauffage : ÉlectriqueMécanisme chauffage : RadiateurLoyer hors charges : 818 €Charges : 0 €Dépôt de garantie : 803 €Honoraires propriétaire : 685 €Honoraires locataire : 685 €
CONSOMMATION ÉNERGÉTIQUE
Diagnostic de performance énergétique
Gaz à Effet de Serre